contact US

 

(Sold Subject To Contract)

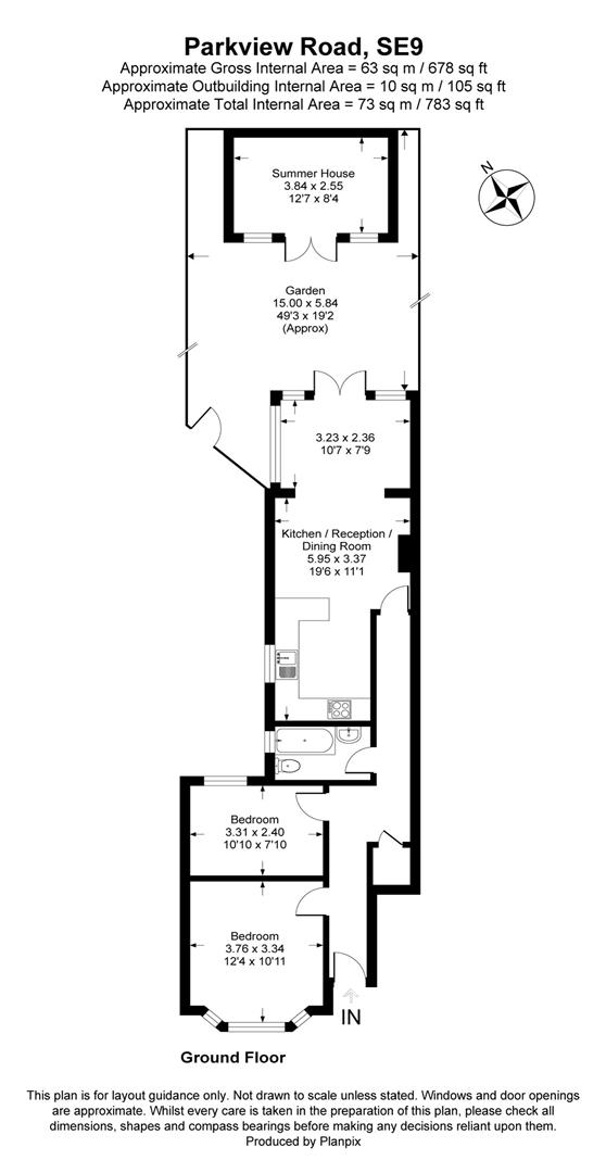
Property Features

  • Chain Free
  • Two Bedrooms Ground Floor
  • Open Plan Extended Living Area
  • Private Garden
  • Garden Room /Office/Gym/Playroom
  • Brand New Kitchen
  • Brand New Bathroom
  • Tax Band C
  • Share of Freehold
  • Ideal For the Commuter
Print
EPC

Brief Description

NOW AVAILABLE TO VIEW...Following an extensive refurbishment project we are proud to offer to the market this superb two bedroom ground floor apartment. No expense has been spared on this amazing property located close to New Eltham station and Village. Your earliest viewing is highly recommended.

Main Description



Viewing

Please contact us on Sales 0208 859 1100 if you wish to arrange a viewing appointment for this property, or require further information.

Energy Performance Certificate
Click here to view the Energy Efficiency Rating and Environmental Impact Rating for this property.


Disclaimer

Irwin Scott (New Eltham) Limited endeavour to maintain accurate depictions of properties in Virtual Tours, Floor Plans and descriptions, however, these are intended only as a guide and purchasers must satisfy themselves by personal inspection.

Find Out How Much Your Homes Worth

Get a free valuation
IE8 Alert! Cookie Alert!

To get the best possible experience using our website we recommend you upgrade to a modern web browser. More info